

VILLA KRIAA V1
Private villa — A foundational architecture, between modernity and Mediterranean heritage
The Kriaa Villa, located in Sfax, is one of the earliest architectural projects designed by atelier dada in the early 2000s. Developed in collaboration with Rached Chaabani, this initial version corresponds to the design submitted and approved for the building permit in 2001
AD 1601 VILLA KRIAA_APD_2021 05…
. It reflects a founding moment, shaped by the enthusiasm of beginnings and a strong desire to establish a sincere, contemporary architecture rooted in its context.
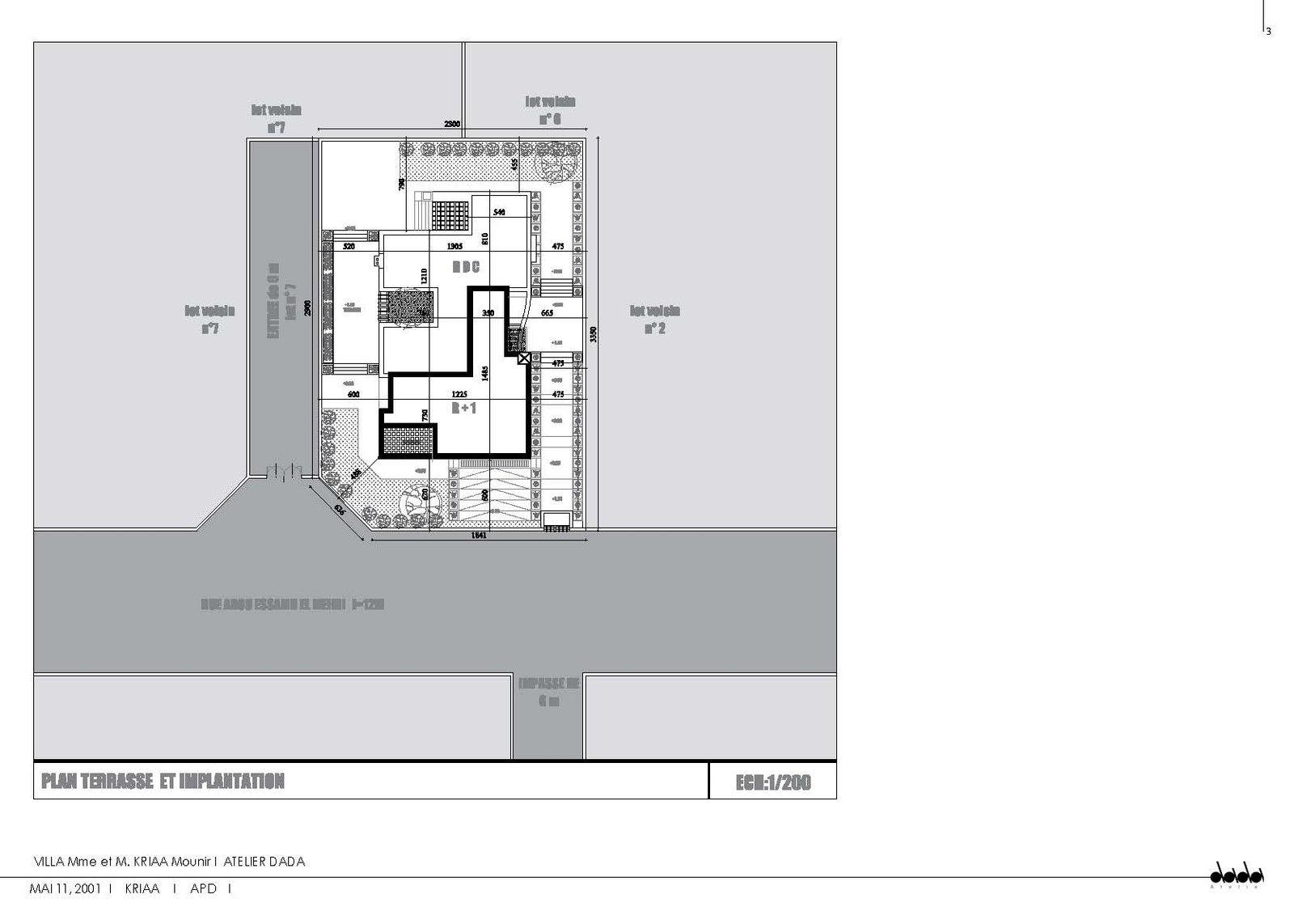
The design is based on a deliberately minimal architectural language. Volumes are simple and legible, assembled through a clear interplay of solids and voids that organizes functions while promoting natural ventilation and daylight. The site layout, visible in the site plan and terrace plan, reveals a careful consideration of thresholds, courtyards and intermediate spaces, articulating interior and exterior relationships.
Drawing from Mediterranean vernacular architecture in an abstract and restrained manner, the villa reinterprets essential archetypes: thick walls, controlled openings, patios, and subtle plays of shadow and depth. These elements respond naturally to the climate of Sfax through passive strategies, while asserting a distinctly modern expression, free from superfluous ornamentation.
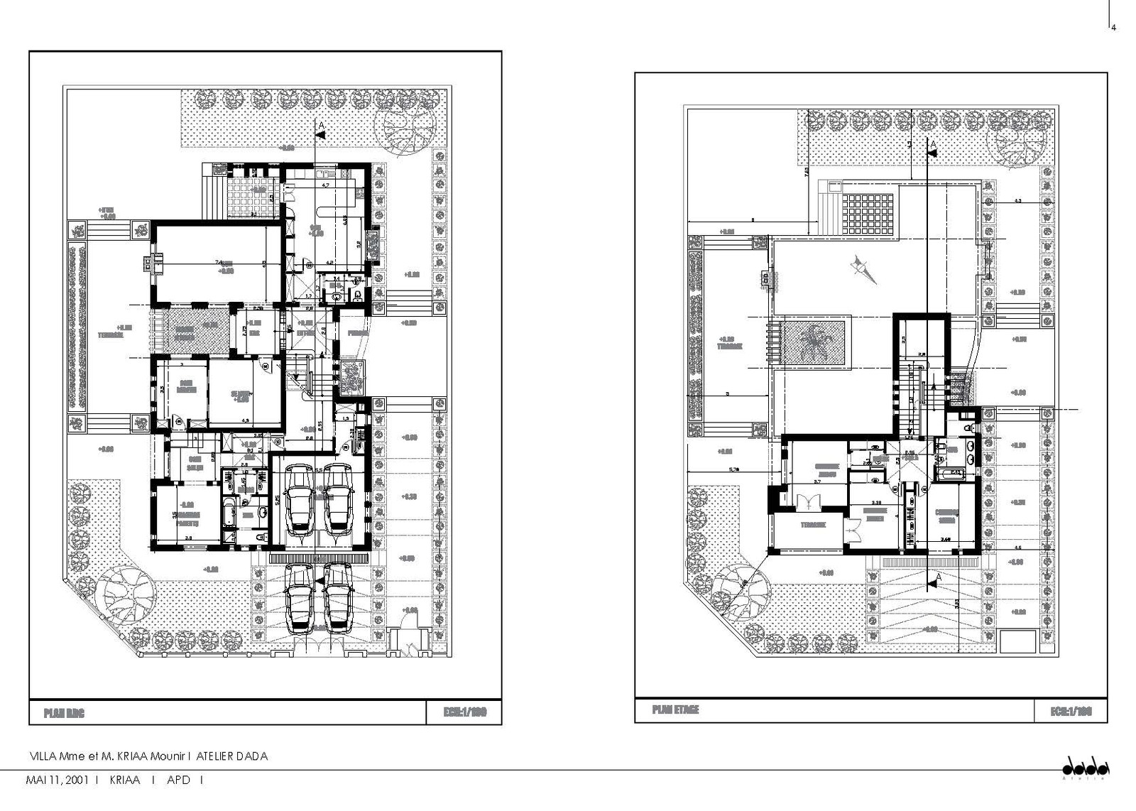
The ground-floor and upper-level plans demonstrate a clear and rational spatial organization, structured around living spaces and circulation. The sections highlight a precise work on heights, level variations and the relationship between ground, walls and roof. The façades express a calm composition, animated by carefully positioned openings and integrated solar protection elements.
This first version of the Kriaa Villa embodies the early architectural stance of atelier dada: an architecture of essentials, attentive to climate, natural light and use, where modernity emerges through respect for context and Mediterranean memory.
The project later underwent significant transformations during its execution phase at the client’s request. This final built version will be presented in a separate publication, in order to clearly distinguish and honor the founding intentions of this initial design.




1





NEXT PROJECT